Winkelwagen 0

€ 0,00

  • Scherpe prijzenScherpe prijzen
  • Alleen de beste kwaliteit Alleen de beste kwaliteit
  • Zelf afhalen of brengserviceZelf afhalen of brengservice
  • Ook rolluiken en zonweringOok rolluiken en zonwering

Veelgestelde vragen - Kunststof kozijnen - Profiel - Verdiept profiel (creon)

We hebben een aantal zaken voor je op een rij gezet.

Ga terug Veelgestelde vragen - Kunststof kozijnen - Profiel Ga terug

Download hieronder de technische / details tekening van het creon verdiept profiel:
Technische details Creon vlak profiel

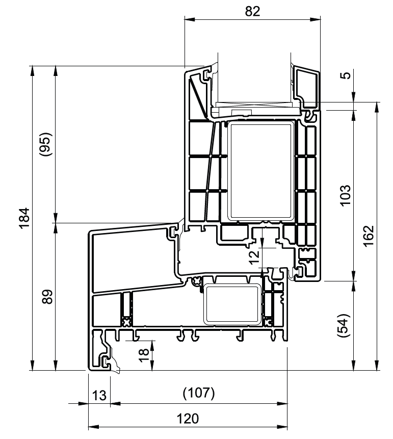
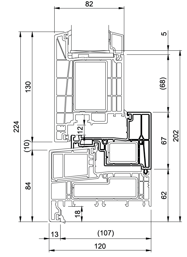
Met aanslag:
Draai/kiep of kiep kozijn
Naar binnen draaiende deuren
Naar buiten draaiende deuren

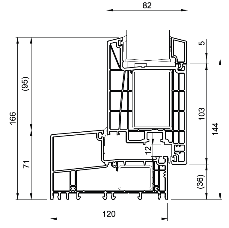
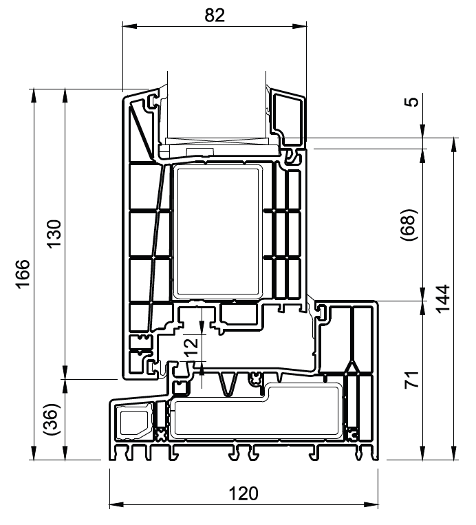
Zonder aanslag:
Draai/kiep of kiep kozijn
Naar binnen draaiende deuren
Naar buiten draaiende deuren

Creon verdiept profiel

Het verdiepte kozijnprofiel van Creon combineert de modernste profieltechnologie met de traditionele eisen van de Nederlandse markt. Doordat de afmetingen van het kozijnprofiel vrijwel gelijk zijn aan een standaard houten kozijn geeft dit het Creon profiel een natuurlijke uitstraling.

Technisch blijft met het systeem van Creon geen wens meer onvervuld. Bouwdiepte, kamervorming en zinvolle detailconstructies voldoen aan alle verwachtingen betreffende warmte- en geluidsisolatie, statica en inbraakpreventie.

Details:
Het Creon verdiept profiel is 115 mm diep en uitgevoerd met 5 kamers. De aanslag is 13 mm diep en 18 mm breed. Dit profiel is beschikbaar in wit en crème wit, daarnaast kunt u voor diverse houtnerf folies kiezen.

Dit profiel heeft de vertrouwde Nederlandse uitstraling en is stabiel en inbraakwerend door de toepassing van staal. Dit profiel kan alleen uitgevoerd worden met een schuine las verbinding.

Heeft u nog vragen?

Neem contact op!