Winkelwagen 0

€ 0,00

  • Scherpe prijzenScherpe prijzen
  • Alleen de beste kwaliteit Alleen de beste kwaliteit
  • Zelf afhalen of brengserviceZelf afhalen of brengservice
  • Ook rolluiken en zonweringOok rolluiken en zonwering

Veelgestelde vragen - Kunststof kozijnen - Profiel

We hebben een aantal zaken voor je op een rij gezet.

Ga terug Veelgestelde vragen - Kunststof kozijnen Ga terug

Kunststof kozijnen en deuren

Verdiept profiel
Bij de optie type profiel voor kunststof kozijnen en deuren heeft u drie verschillende keuzes. Het "verdiepte profiel" is een profiel welke speciaal voor Nederland is ontwikkeld. Dit profiel is 115 mm diep. Deze diepte komt overeen met de maatvoering en diepte van een typisch Nederlands houten kozijn. Deze diepte is nodig om voldoende overlap te hebben met de spouwmuur, omdat de kozijnen (meestal) tussen de buitenmuur worden geplaatst.

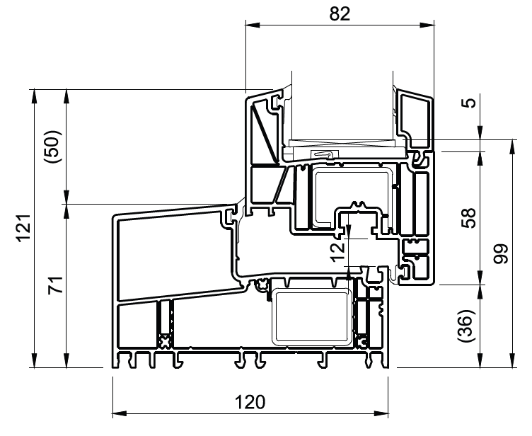
Creon verdiept profiel

  1. Diepte van het profiel 115 mm
  2. De aanslag van een verdiept profiel is 18 mm;
  3. Verbinding in verstek of HVL;

Technische tekening Creon profiel met aanslag
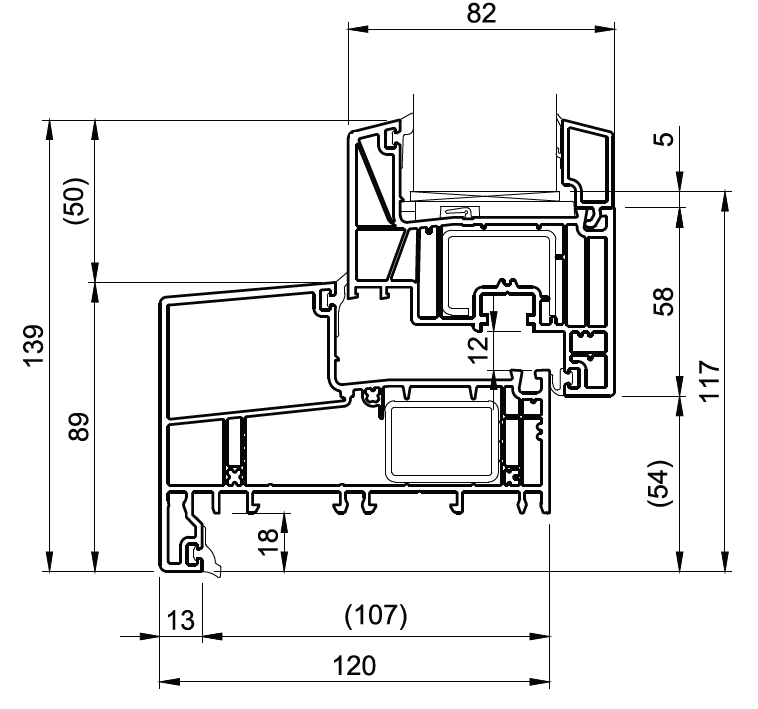
Technische tekening Creon profiel zonder aanslag
Technische specificaties Creon profiel

HVL of houtlook verbinding
Het verdiepte profiel is ook beschikbaar als "Verdiept profiel HVL" (hout verbinding look of houtlook). Er wordt een speciale techniek toegepast, waarbij de verbinding aan de buitenzijde van het kozijn recht is. Hierdoor lijkt het kunststof kozijn meer op een houten kozijn.

Vlak profiel
Naast het verdiepte profiel kunt u ook kiezen voor een vlak profiel. De diepte van dit profiel is 73 mm. Met name het uiterlijk aan de buitenzijde is anders t.o.v. een verdiept profiel.

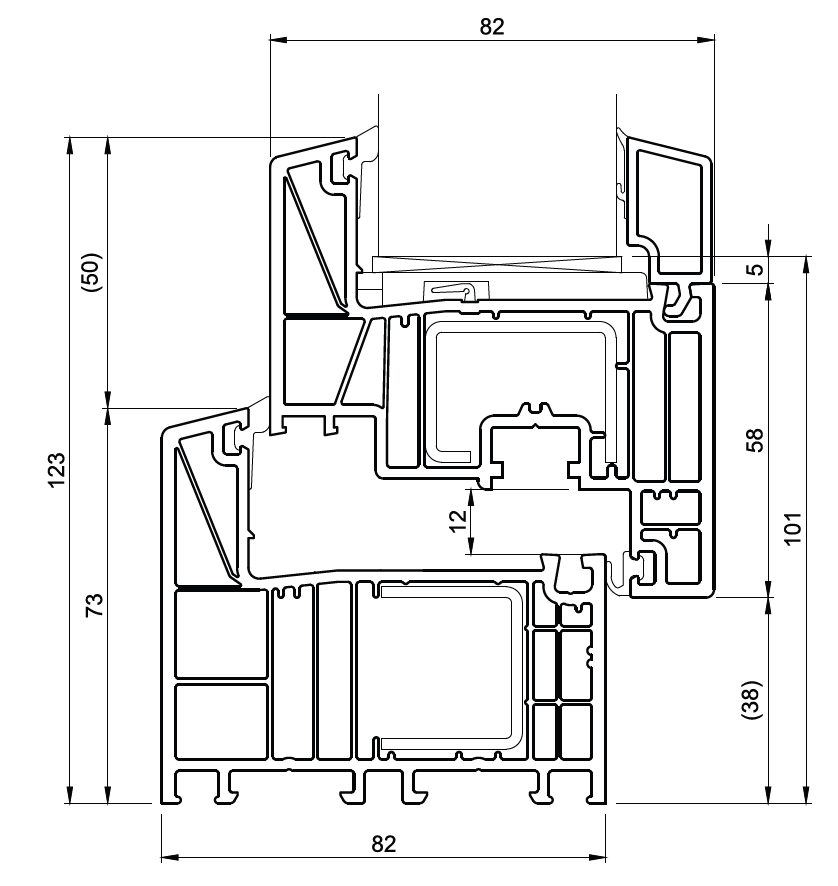
Creon vlak profiel

  1. Diepte van het vlakke profiel 73 mm
  2. De aanslag van een vlak profiel is 22 mm;
  3. Verbinding uitsluitend in verstek;

Technische tekening Creon vlak profiel met aanslag
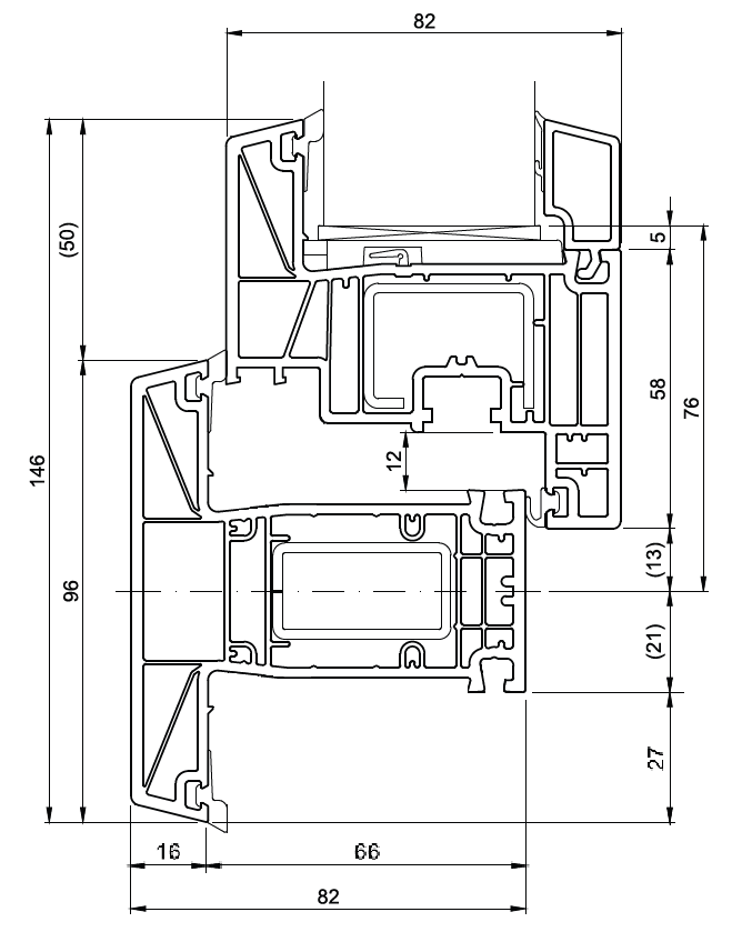
Technische tekening Creon vlak profiel zonder aanslag
Technische specificaties Creon profiel

Algemene details van toepassing op beide profielen:

  1. De Uw waarde uitgaande van standaard kozijn met een afmeting van 1230mm * 1480mm met beglazing Ug 1,1 W/(m²K) is Uw = 1,3 W/(m²K).
  2. Afhankelijk van de afmetingen wordt het profiel uitgevoerd conform de WK2 inbraakwerendheid voorschriften.
  3. Profiel beschikbaar in de kleuren wit en crème wit.
  4. Mogelijkheid tot gebruik houtnerf folie waardoor het kozijn een houten kozijn krijgt
  5. De houtnerf folie is beschikbaar in diverse kleuren

Kunststof schuifpui

U heeft bij de kunststof schuifpui keuze uit twee verschillende systemen.

Hefschuifpui (Premidoor):
Het hefschuif systeem (Premidoor) is een premium systeem geschikt voor kleine en grote afmetingen. Afmetingen tot 5000 mm breed en 2500 mm hoog zijn geen probleem. Het systeem is geschikt voor zowel dubbele als triple beglazing. Meer informatie.

Schuifpui (EvolutionDrive):
Het schuif systeem is een budget variant welke geschikt is voor kleinere afmetingen. Het systeem EvolutionDrive kan worden voorzien van dubbele beglazing en is tot 6 m2 te bestellen. Meer informatie.

Heeft u nog vragen?

Neem contact op!